| NIVEAU | PIÈCE | SURFACE |
- Ref 73028858
- Ref VLNT/C1301
- Type Appartement
- Ville AIX LES BAINS
- Pièces 4
- Chambres 3
- Surface 138 m²
- Terrain NC
- Prix 1 727 000 € *
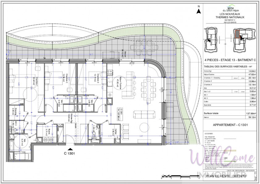
Aix-les-Bains, dans la prestigieuse résidence « Les Nouveaux Thermes » - Découvrez cet appartement d’exception T4 de 137,87m² en Attique au 13ème étage côté Nord-Est du bâtiment Sud.
Cet appartement unique se distingue par une distribution intérieure remarquable : entrée, pièce de vie de 47,67m² accueillant séjour cuisine et prolongée par un blacon végétalisé de 59,12m² orientée Nord-Est, offrant de superbes vues sur les massifs alpins.
L’espace nuit comprend : un dégagement, deux chambres avec salle d’eau, une chambre avec salle de bains/WC et dressing, une buanderie, un cellier et des WC indépendants.
Vendu avec un garage et une place de stationnement en sous-sol sécurisé.
La résidence se distingue par ses prestations premium et son engagement environnemental : façades végétalisées sur 3,5 km, plus de 15 000 plantes, toitures vertes, récupération des eaux pluviales et planchers chauffants/rafraîchissants par géothermie.
Contactez votre agence WellCome Immobilier pour réserver cet appartement d’exception parmi les premiers lots disponibles !
Frais de notaire réduits
Programme certifié RE2020 seuil 2022 & NF Habitat HQE
Livraison 1er trimestre 2029
Bien soumis au statut juridique de la copropriété. Nb de lot :219.
* Honoraires charge vendeur.
- Bien
- 45.688329647
- 5.91615915299
- /images/ggmap-marker.png
- click
-
AppartementAIX LES BAINS - 138 m²




















